Om föreningen
Här har vi sammanställt fakta om föreningen för boende, mäklare och spekulanter.
Dokument att ladda ner:
- stadgar
- ordningsregler
- radonmätning
- energideklaration
- tomtritning 1
- tomtritning 2
- lägenhetsritning våningsplan 1, 2 och 3
- blanketter för ansökan om medlemskap, utträde och andrahandsuthyrning hittar du på fastumdirekt.se
Årsredovisningar
Underhåll och reparationer
Enligt lagd underhållsplan för 2012 - 2026 kommer vi åtgärda:
- ✔ 2013 - stambyte, badrumsrenovering, byte elstammar
- ✔ 2014 - värmeventiler
- ✔ 2016 - installation av fibernät
- ✔ 2016 - dränering av fastighet
- ✔ 2018 - takrenovering
- ✔ 2019 - godkänd besiktning av balkonger (endast estetiska brister)
- ✔ 2020 - fönsterrenovering
- ✔ 2020 - godkänd OVK inkl. rensning av kanaler
- 2022/2023 - balkonger, mindre åtgärder
- 2025 - OVK rensning av kanaler
Om föreningen
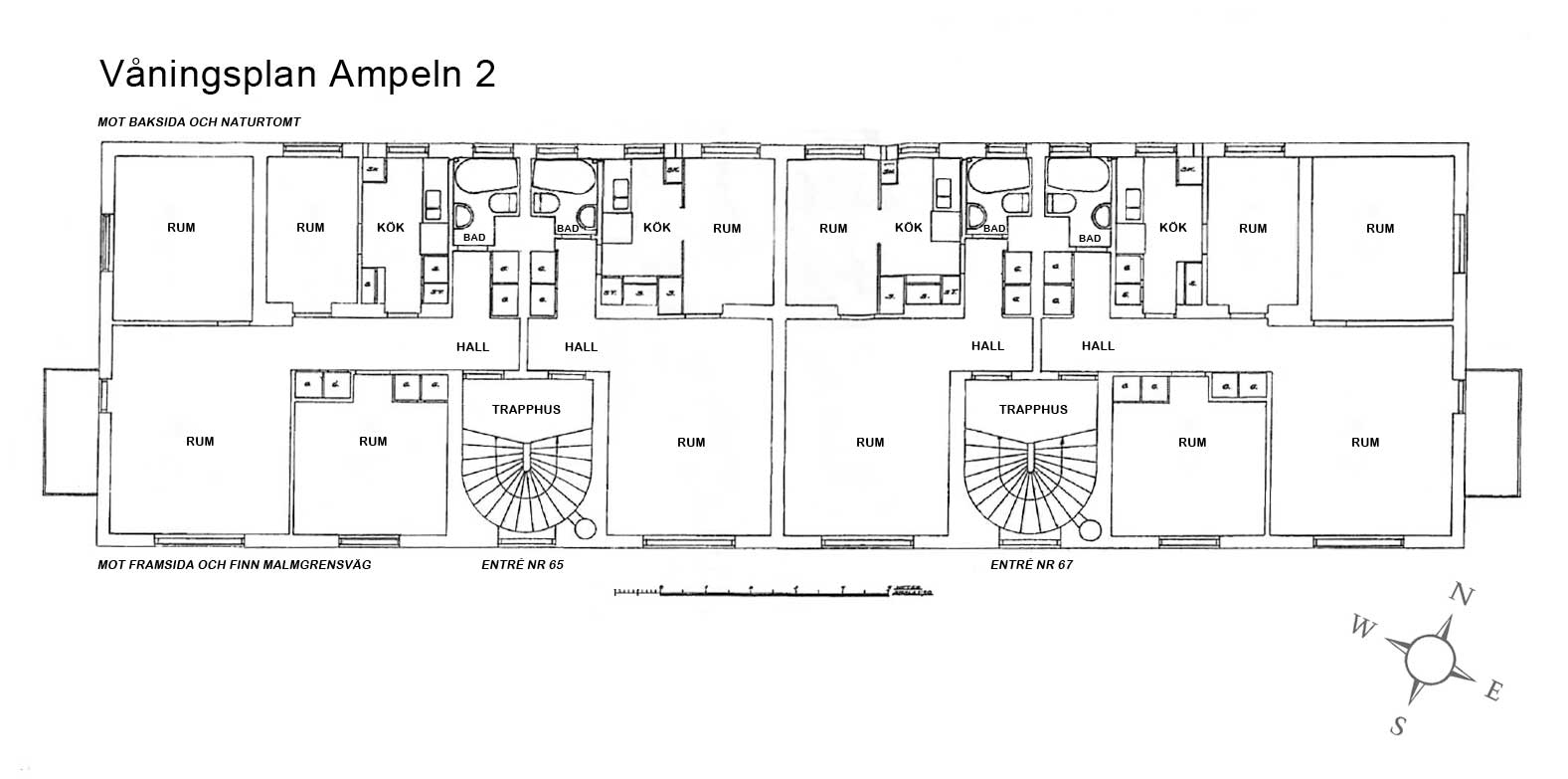
Brf Ampeln 2 bildades den 15 juli 2011 och förvärvade fastigheten Ampeln 2 den 6 februari 2013. Föreningen omfattar fastigheten Ampeln 2 med en totalyta på 914 kvm varav 712 kvm är lägenhetsyta. Vi har en fastighet med två trapphus-adresser: Finn Malmgrens väg 65 och 67.
Fastigheten
Fastigheten byggdes 1943. Det är ett typiskt smalhus från 1940-talet med tre våningsplan och två trapphus.
Lägenheter, lokaler och gemensamma utrymmen
Föreningen omfattar 13 st lägenheter samtliga upplåtna med bostadsrätt. Se lägenhetsritning för våningsplan 1, 2 och 3 samt källarplan.
- 6 st 4 rok á 70 kvm
- 6 st 2 rok á ca 38 kvm
- 1 st 3 rok á 65 kvm (gavellägenhet 1/2 tr. ner)
Föreningen har inga kommersiella lokaler.
Gemensamma utrymmen utgörs av en härlig naturtomt utomhus samt källare med tvättstuga, torkrum, källarförråd till varje lägenhet samt förvaring av cyklar och barnvagnar. Från källaren och ut mot baksidan finns en ramp för att lätt kunna få ut och in sin cykel eller barnvagn.
Tvättstuga
I tvättstugan finns:
- 2 st tvättmaskiner
- 1 st torktumlare
- 1 st torkskåp
- 1 st kallmangel
Tomträtt
på 1213 kvm som arrenderas av Stockholm Stad. Det är en härlig naturtomt med fullvuxna träd och fint kuperad mark. Enligt lagd detaljplan ingår inte marken framför huset mot gatan i vårt arrendeavtal. Den delen förvaltas och underhålls av Stockholm Stad.
Villkor för medlemskap i föreningen
Krav på mantalskrivning
Föreningen upplåter bostäder åt medlemmarna. Det innebär att lägenheten ska vara medlemmens huvudsakliga boende. Medlemskap medges inte om lägenheten ska användas som övernattningslägenhet, skrivarlya eller liknande.
Delat ägande
Föreningen accepterar delat ägande. Den som bor i lägenheten måste ha minst 10% ägarandel. (För andrahandsupplåtelser krävs alltid styrelsens skriftliga godkännande, även om upplåtelsen sker inom familjen.)
Medlemskap för juridiska personer
Vi accepterar endast fysiska personer som medlemmar och bostadsrättshavare.
Avgifter
Vi är en förening med 2013 som vårt första verksamhetsår. Vår ekonomi framgår i lagd ekonomisk plan. Den ekonomiska planen kalkylerar att årsavgiften höjs med 2% per år.
Kostnader som ingår i månadsavgiften är värme, vatten och tilläggsföräkring för bostadsrättshavare. Förbrukning av el och gas bekostas av respektive medlem.
Internet/TV/Telefoni
Fiber är framdraget till lägenheterna av IP-only. Beställ tjänster via https://www.ip-only.se/privat/bestall/
Uppvärmning
sker med fjärrvärme.
Försäkringar
Brf Ampeln 2 är fullvärdesförsäkrad i Trygg Hansa med utökat skydd för bostadsrättsförening som omfattar allriskförsäkring, styrelseansvarsförsäkring, skadeståndsgaranti och förmögenhetsbrottsförsäkring.
Kollektiv tilläggsförsäkring
för bostadsrättshavare ingår i föreningens företagsförsäkring och behöver inte tecknas av medlemmen separat.
Överlåtelse
I normalfallet skickar mäklaren in blankett för in- och utträde till föreningens förvaltare, Fastum, på adressen nedan.
E-post: annika.norberg@fastum.se
Vanlig post:
Annika Norberg Strömkvist
Fastum AB
Box 3118, 169 03 SOLNA
Tel: 08-50 60 47 51
Du måste få godkännande innan ut- och inflyttning kan ske.